top of page
FEDERICO ELIASCHEV
&
ASOC.
.
Architecture studio
Previous
Next
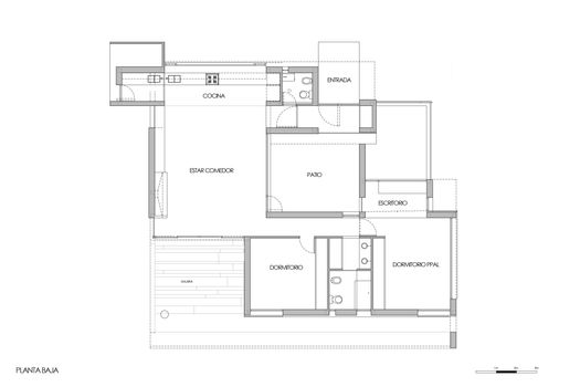
Casa en Lincoln
Year:
2007
Surface:
150 M2
Project team:
Eliaschev, Padilla, Bercún
1/2
1/1
Architecture
Publications
CV
Team
Contact
bottom of page